Ref. V00128
Baugrundstück in Son Mesquida. Mit genehmigtem Basisprojekt

449.000€

Son Mesquida
462m2
Wohnfläche
7
Zimmer
5
Badezimmer
2
Parkplatz

Pool
27537m2
Grundstück
Baugrundstück in Son Mesquida. Mit genehmigtem Basisprojekt
Son Mesquida / Mallorca

Willkommen in Son Mesquida - hier erwartet Sie ein einzigartiges, komplett eingefriedetes Baugrundstück. Die Genehmigung für das Basisprojekt liegt bereits vor, somit hat der Bauherr die Möglichkeit, das Haus nach seinen Wünschen noch zu modifizieren und kann direkt mit dem Bau beginnen!

Willkommen in Ihrem neuen Zuhause in Son Mesquida!

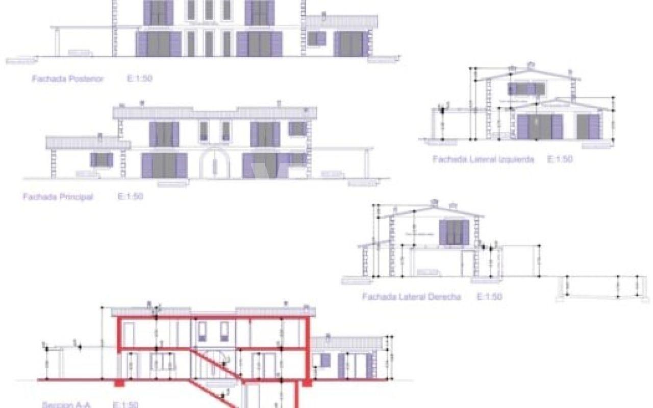
Im Basis Projekt wurde eine Finca mit 5 Schlafzimmer mit Bad en Suite eingereicht, wobei Sie die Aufteilung der Räume noch gestalten können. Zudem sieht die Planung einen großzügigen Wohn-/Essbereich mit offener Küche vor.

Die Besonderheit dieses Landhauses:
Das Wohnzimmer wird vom Essbereich durch einen Glas Patio getrennt, der zum gemütlichen Verweilen unter einem Olivenbaum einlädt.

Von allen Räumen im Erdgeschoss haben Sie Zugang zu einer rundumlaufenden Terrasse.
Des Weiteren finden Sie hier die ersten zwei Schlafzimmer mit Bad en suite, ein Gäste-WC und einen praktischen Abstellraum. Der angrenzende Carport bietet Platz für zwei Auto.

Über eine zentral angelegte Treppe erreichen Sie das Obergeschoss mit 3 Schlafzimmer mit Bad en suite und einem Büro welches als weiteres Schlafzimmer genutzt werden könnte.
Der Master-Bedroom verfügt über ein großes Bad en suite mit Blick auf die Berge der Tramuntana.
Alle Schlafzimmer sind mit Einbauschränken geplant.

Der Technikraum befindet sich im Kellergeschoss.

Mit Blick über den großzügigen Pool der nach Süd-Westen ausgerichtet ist, werden Sie jeden Sonnenuntergang in vollen Zügen genießen.

Daten im Überblick:

•Kaufpreis: 495.000, - EUR
•Grundstücksgröße: ca. 27.537 m2
•Bebaute Fläche: ca. 462 m2
•Wohnfläche: ca. 239 m2
•Anzahl Zimmer 7
•Anzahl Büro 1
•Anzahl Schlafzimmer 5
•Anzahl Badezimmer 5
•Anzahl sep. WC 1
•Bauweise Massiv
•Gesamtetagen: 3
•Abstellraum u. Keller
•Terrasse
•Swimmingpool
•Carport für 2 Fahrzeuge
•Lizenz für den Brunnen liegt vor!
• Keine Architektenbindung!

Beschreibung der Umgebung - Felanitx

Dank der idyllischen Umgebung von Son Mesquida können Sie hier in Ruhe und Entspannung leben. Dieser charmante Ort, bietet die perfekte Kombination aus absoluter Ruhe und Nähe zu allen wichtigen Annehmlichkeiten des täglichen Lebens. Supermärkte, Ärzte und Apotheken sind nur wenige Autominuten entfernt und sorgen für eine mühelose Versorgung. Die Lage bietet zudem eine gute Anbindung zu den umliegenden Orten und Stränden. Für Familien mit Kindern ist die Lage ideal, da Grundschulen und weiterführende Schulen in der direkten Umgebung zu finden sind. In der Freizeit bietet die Nachbarschaft zahlreiche Möglichkeiten zur Entspannung und Unterhaltung. Das Zentrum sowie die nächste Stadt sind nur eine kurze Autofahrt entfernt und laden zum Bummeln, Genießen und Entdecken ein. Son Mesquida liegt im Süd-Osten der Insel und gehört zur Gemeinde Felanitx. Felanitx liegt mitten in der wunderschönen Natur im Südosten Mallorcas. Der Ort liegt am Fuße des bezaubernden Klosters Sant Salvador. Der größte Naturhafen Mallorcas Portocolom - der zu Felanitx gehört - ist in 10 Autominuten erreichbar und bietet mit seinen zahlreichen Restaurants, Bars und Cafés sowie den romantischen Badebuchten viele Möglichkeiten zum Entspannen. Der exklusive 18-Loch-Golfplatz Vall d‘Or ist ebenfalls in ca. 15 Fahrminuten erreichbar und zum Flughafen benötigt man ca. 35 Minuten.

Weitere Ausstattung

Sonstige Ausstattung

Abstellraum

Gartennutzung

Gäste-WC

Keller

Swimmingpool

Wasch-/Trockenraum

hola
Sie möchten mehr Informationen
Über diese Eigenschaft
Ähnliche Immobilien
Mallorca