Ref. V00557
Grundstück mit projekt nur 1km von Santanyi und Baugenehmigung

828.000€

Santanyi
500m2
Wohnfläche
5
Zimmer
4
Badezimmer
0
Parkplatz

Pool
27000m2
Grundstück
Grundstück mit projekt nur 1km von Santanyi und Baugenehmigung
Santanyi / Mallorca

Grundstück von ca. 27.000m2 mit einer Steinmauer abgeschlossen, 1 km von Santanyí entfernt, mit schöner Aussicht auf die Kirche von Santanyi und in der Nähe vom Strand S'Amarador. 

 

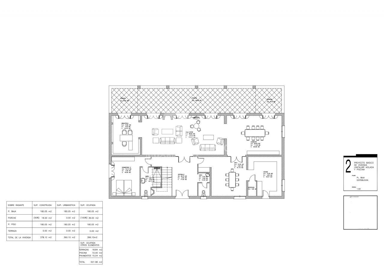
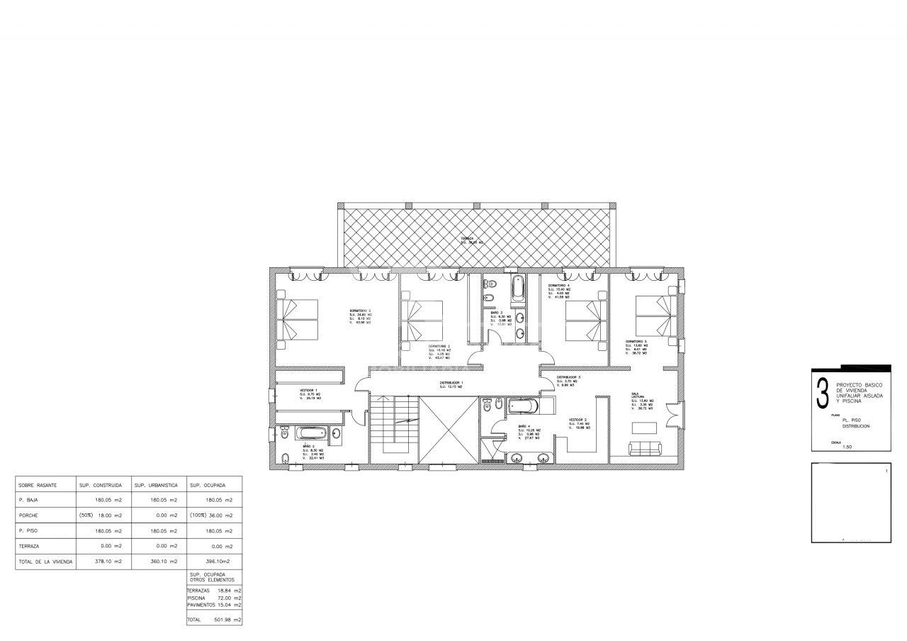
Es gibt ein Basik-Projekt für den Bau eines 2-stöckigen Hauses von etwa 500m2 und Swimmimg-pool mit 72m2. (Bohrung bereits erfolgt)

Wie in den Plänen beschrieben, gibt es im Erdgeschoss eine Eingangshalle mit einem Gäste-WC, ein Wohnzimmer mit Zugang zu einer Bibliothek und ein geräumiges Esszimmer. Ein großes Wohn-/Esszimmer und küche mit Speisekammer. 

Alle Zimmer auf dieser Etage haben große Fenster mit Zugang nach draußen und eine überdachte Terrasse.

Im ersten Stock gibt es 4 Schlafzimmer (2 davon mit Ankleideraum). Ein Lesezimmer und 3 Badezimmer.

 

Der Zugang zum Grundstück über einer asphaltierte Straße.

Es hat Stadtwasser.

Die Stromversorgung wird durch Sonnenkollektoren empfohlen.

 

Möglicher Beginn der Arbeiten im Juli-23

 

hola
Sie möchten mehr Informationen
Über diese Eigenschaft
Ähnliche Immobilien
Mallorca