Ref. V00521
Grundstück mit Projekt und Lizenz in Manacor

199.000€

Manacor
150m2
Wohnfläche
3
Zimmer
2
Badezimmer
0
Parkplatz

Pool
15000m2
Grundstück
Grundstück mit Projekt und Lizenz in Manacor
Manacor / Mallorca

14.793m2 grosses Grundstück in gebirgiger Lage mit gültiger Baugenehmigung, zu drei Teilen von einer Steinmauer umgeben, mit kleiner Ruine

im Bereich von  "Alborcassa", Manacor.

Es bietet einen wunderschönen Blick auf den Berg "San Salvador" und die halbe Insel.

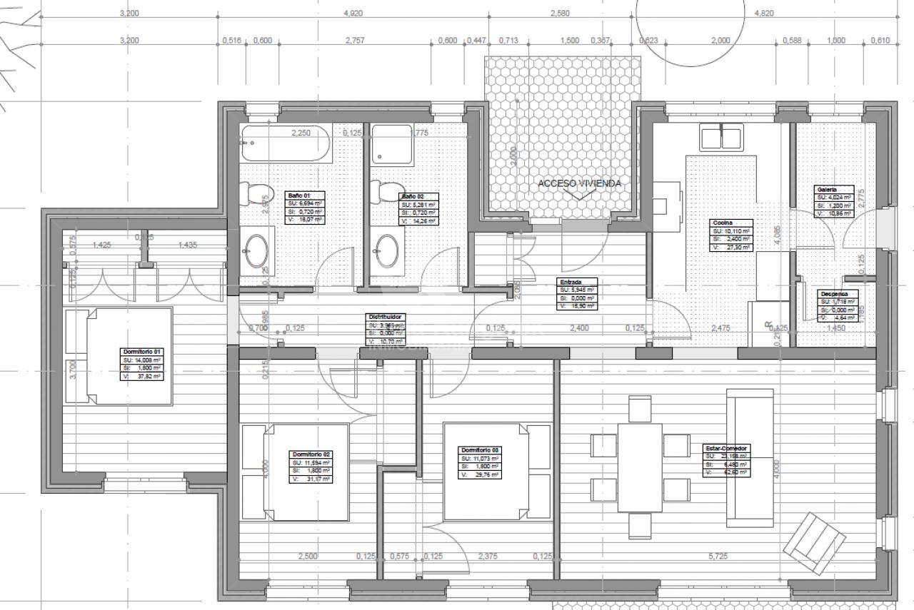
Ein Basisprojekt und eine Lizenz für den Bau eines 150 m2 großen Hauses mit 3 Schlafzimmern, 2 Bädern (eines mit Dusche und das andere mit Badewanne), einem Wohn-Esszimmer, einer Küche mit Speisekammer und einem 32 m2 großen Swimmingool liegen vor.

Das öffentliche Stromnetz befindet sich in 150m Entfernung.

Desweiteren besteht die Möglichkeit zur Bohrung eines Brunnens in 80m Tiefe.

hola
Sie möchten mehr Informationen
Über diese Eigenschaft
Ähnliche Immobilien
Mallorca