Ref. V01277
Rustikale Finca mit Projekt nahe Manacor

580.000€

Manacor
294m2
Wohnfläche
4
Zimmer
5
Badezimmer
0
Parkplatz

Pool
39000m2
Grundstück
Rustikale Finca mit Projekt nahe Manacor
Manacor / Mallorca

Diese rustikale Finca liegt in der ruhigen Gegend von Manacor und bietet eine hervorragende Gelegenheit für alle, die ein charmantes und modernes Zuhause mitten in der Natur suchen. Das Grundstück verfügt über ein Grundprojekt und ist auf drei Etagen verteilt, wodurch es ideal ist, um Komfort und Privatsphäre zu genießen.

Die Finca verfügt über 4 geräumige Schlafzimmer, 4 Badezimmer en suite und 1 Gäste-WC und bietet insgesamt 325 m² Wohnfläche auf einem Grundstück von ca. 39.000 m², was viel Platz bietet, um die natürliche Umgebung zu genießen. Die Wohnfläche beträgt 583 m² und die bebaute Fläche 294 m².

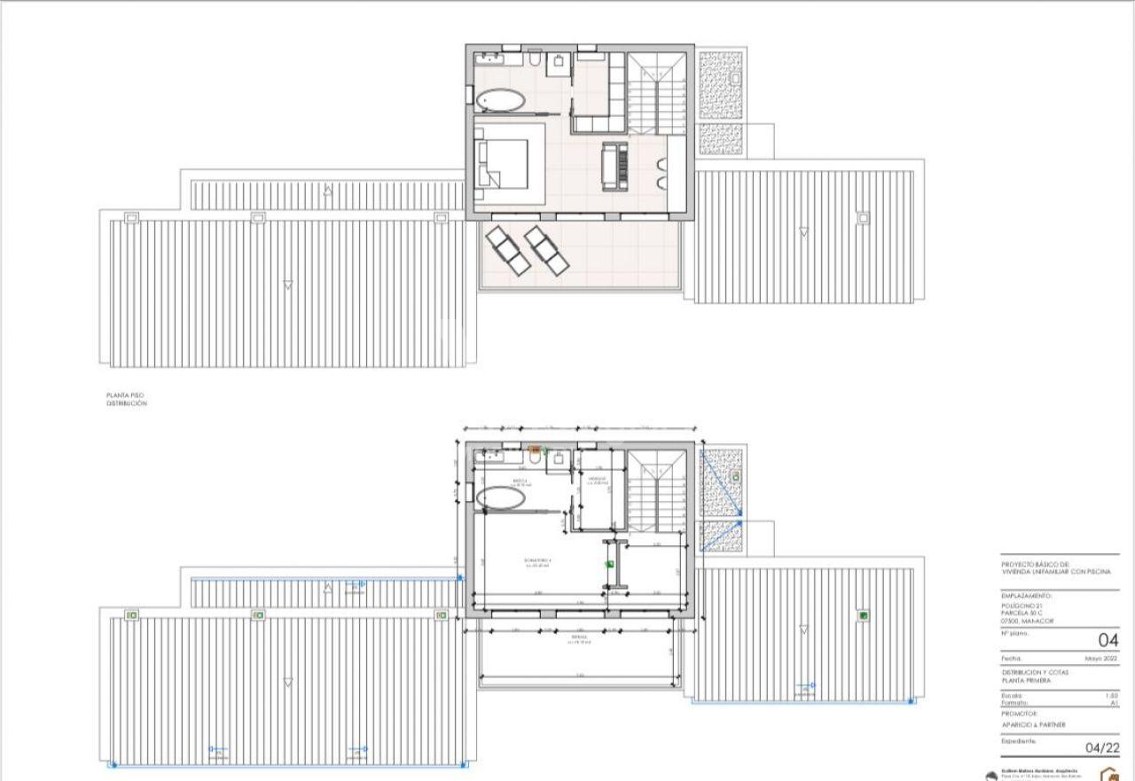
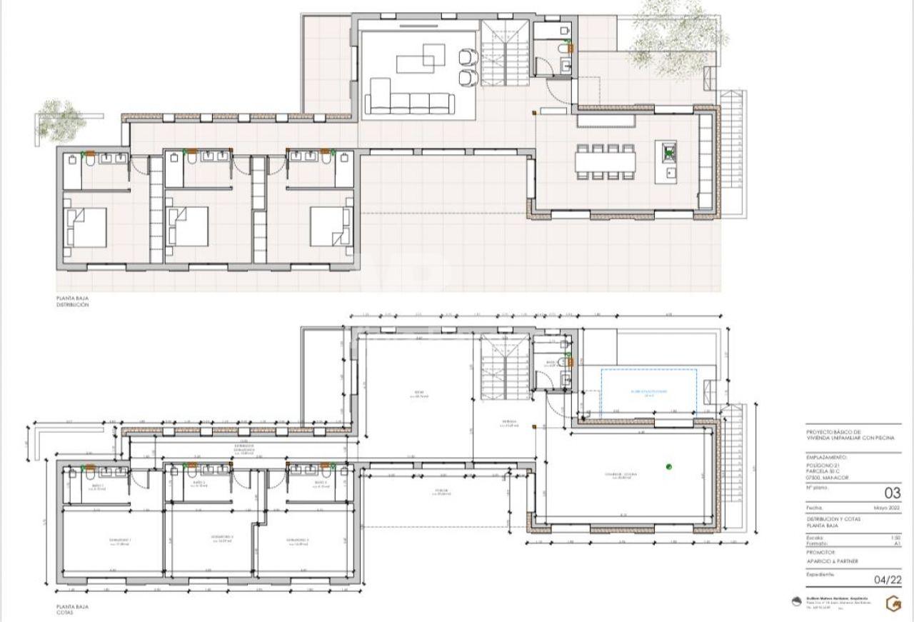
Im Untergeschoss (Keller) befinden sich ein geräumiger Flur, eine Waschküche, ein Weinkeller und die Maschinenräume sowohl für das Haus als auch für den Pool.

Im Erdgeschoss befinden sich ein geräumiges und helles Esszimmer mit Küche von 36 m², ein Wohnzimmer von 34 m², drei Schlafzimmer mit eigenem Bad und eine Veranda von 21 m², die sich perfekt eignet, um die Aussicht und die natürliche Umgebung zu genießen. Darüber hinaus verfügt es über eine zusätzliche Toilette und einen separaten Eingang, der Komfort und Privatsphäre bietet.

Im ersten Stock befindet sich das Hauptschlafzimmer mit eigenem Bad und eigenem Flur.

Das Anwesen verfügt über kommunales Wasser und ein Stromsystem mit Sonnenkollektoren, was es zu einer nachhaltigen und energieeffizienten Option macht.

Ein einzigartiger Ort, dessen Design auf das Wohlbefinden und den Komfort der ganzen Familie ausgerichtet ist, nur wenige Minuten von Manacor entfernt. Verpassen Sie nicht die Gelegenheit, Ihr Zuhause im Herzen Mallorcas zu verwirklichen.

 

hola
Sie möchten mehr Informationen
Über diese Eigenschaft
Ähnliche Immobilien
Mallorca