Ref. V00140
Exklusives rustikales Grundstück zwischen Felanitx und Manacor

300.000€

Felanitx
193m2
Wohnfläche
3
Zimmer
2
Badezimmer
0
Parkplatz

Pool
19507m2
Grundstück
Exklusives rustikales Grundstück zwischen Felanitx und Manacor
Felanitx / Mallorca

Exklusives rustikales Grundstück zwischen Felanitx und Manacor

Mit genehmigtem Projekt und Baugenehmigung – Option schlüsselfertiger Erwerb

Inmitten der idyllischen Landschaft zwischen Felanitx und Manacor befindet sich dieses außergewöhnliche rustikale Grundstück mit viel Privatsphäre, Ruhe und weitem Blick — der ideale Ort für Ihre Traumimmobilie auf Mallorca.

 Eine seltene Gelegenheit

 Das Grundstück verfügt über:

  • Eingereichtes Projekt

  • Erteilte Baugenehmigung

  • Erteilte Brunnenlizenz

 Ein sofortiger Baubeginn ist möglich – ohne behördliche Wartezeiten.

 Zusätzlich besteht die Möglichkeit, die Immobilie schlüsselfertig nach Fertigstellung der Bauarbeiten zu erwerben (Preis auf Anfrage).


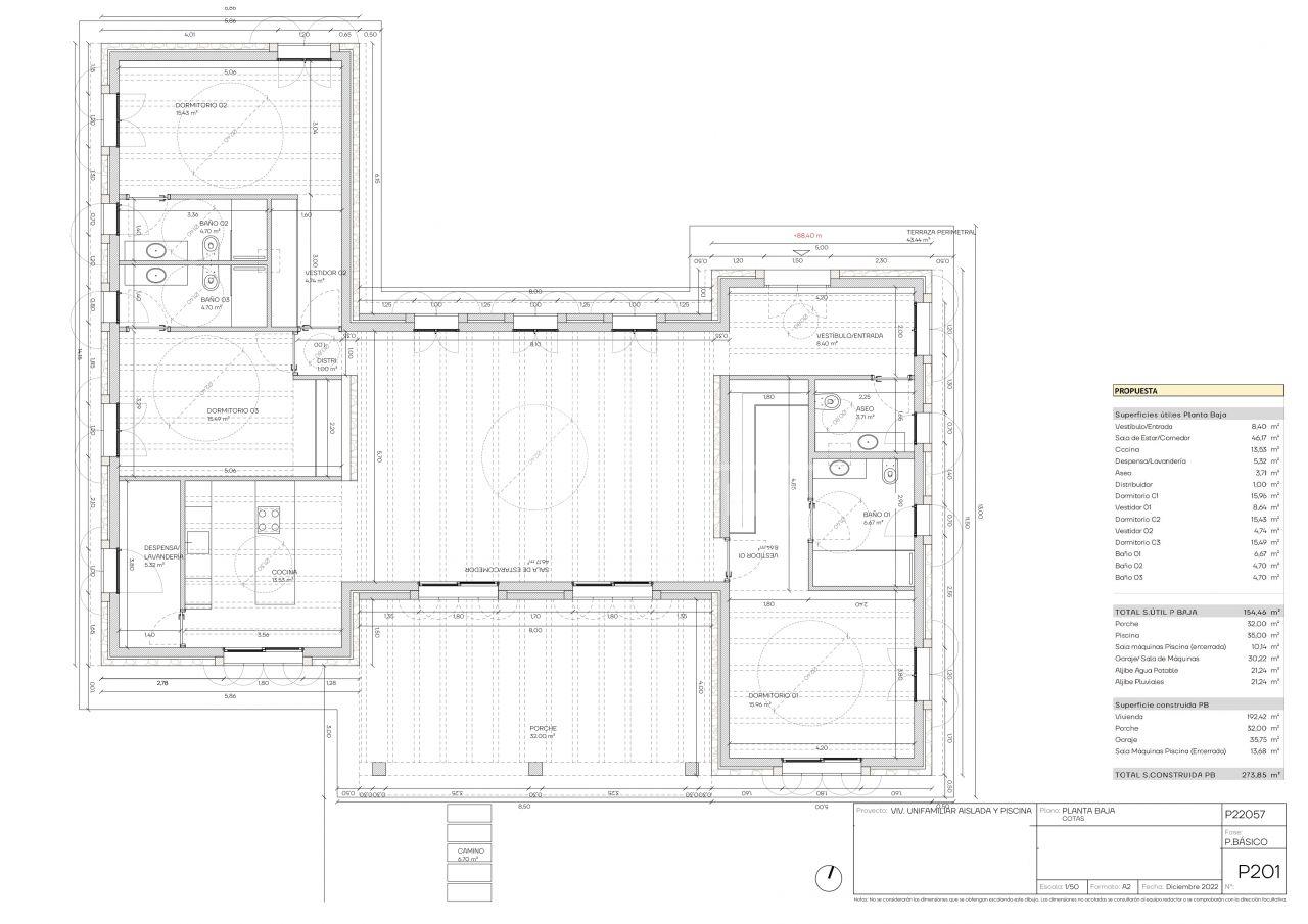
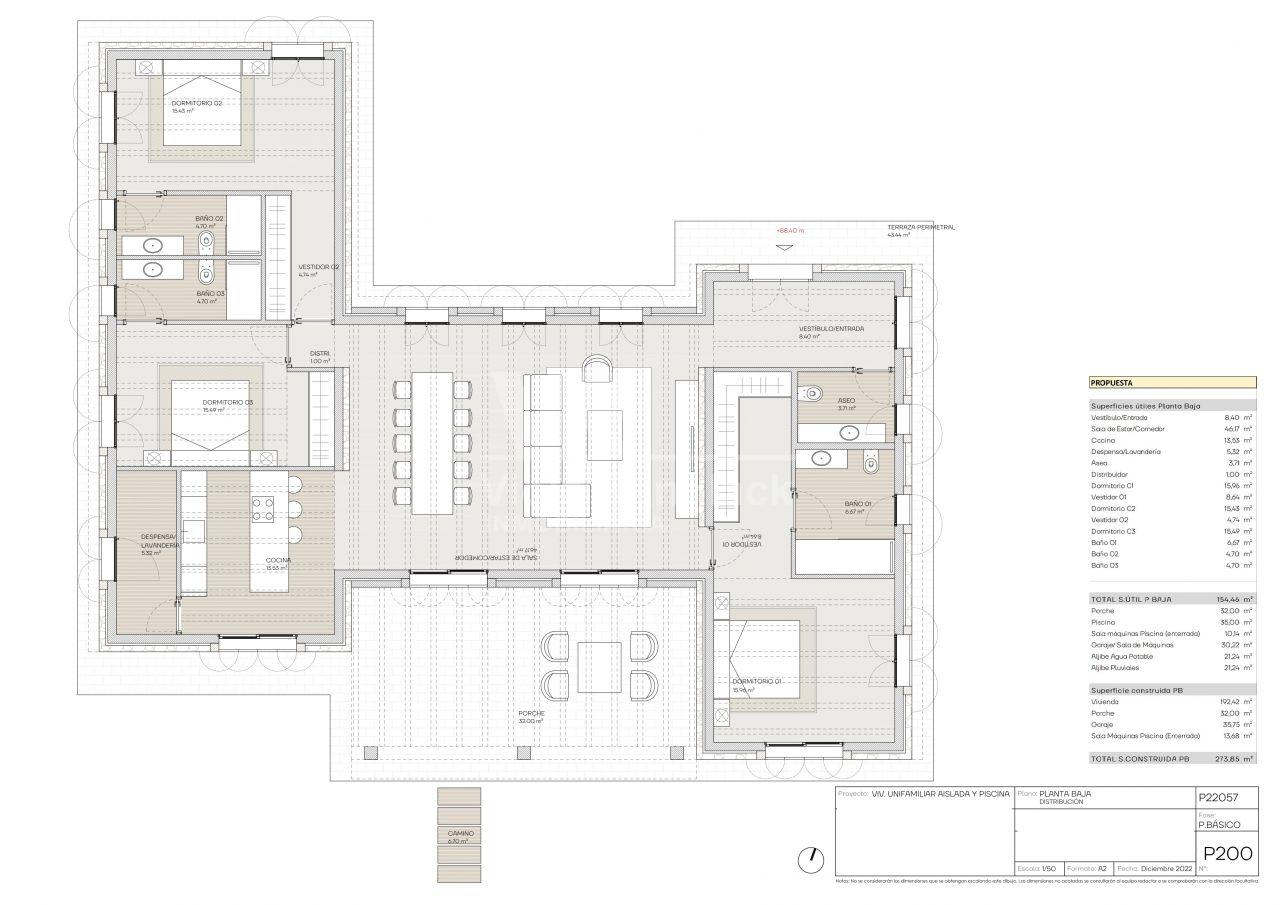
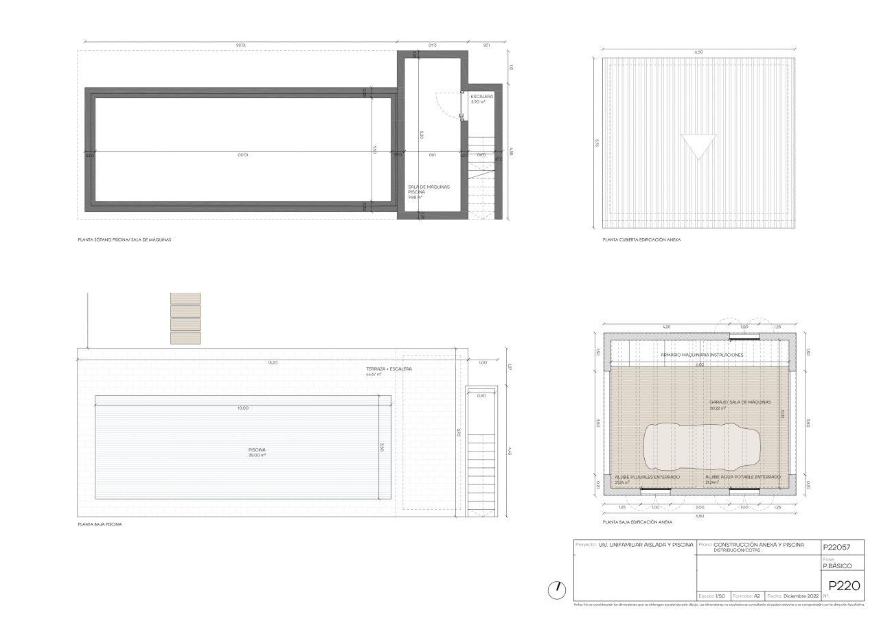
 Elegantes eingeschossiges Villenprojekt

 Das genehmigte Projekt sieht eine moderne, stilvolle Villa auf einer Ebene vor, die mediterrane Architektur mit zeitgemäßem Wohnkomfort   verbindet.

 Hauptgebäude

  • Bebaute Fläche Wohnhaus: 192,42 m²

  • Wohn-/Nutzfläche Erdgeschoss: 154,46 m²

  • Überdachte Terrasse (Porche): 32,00 m²

  • Umlaufende Terrassen: 43,44 m²

 Raumaufteilung:

  • Heller und großzügiger Wohn- und Essbereich mit 46,17 m²

  • Separate Küche

  • Speisekammer / Hauswirtschaftsraum

  • 3 geräumige Doppelschlafzimmer

    • Master-Suite mit Ankleide

    • Zweites Schlafzimmer mit Ankleide

  • 3 Badezimmer + Gäste-WC

  • Repräsentativer Eingangsbereich

 Großzügige Fensterflächen schaffen einen fließenden Übergang zwischen Innen- und Außenbereich und ermöglichen ein ganzjähriges   mediterranes Wohngefühl.


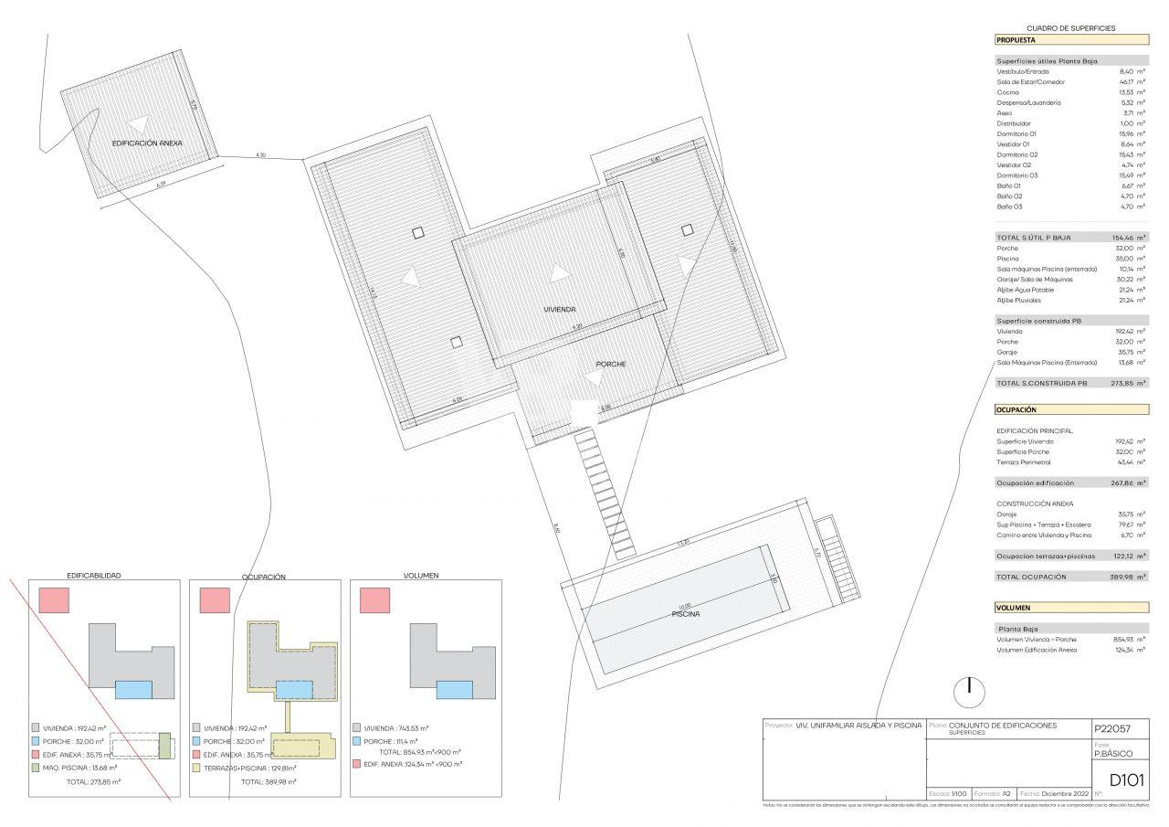
 Außenbereich & Zusätzliche Ausstattung

  • Privater Swimmingpool (35 m²)

  • Poolterrassen und Zugangsbereiche: 79,67 m²

  • Freistehende Garage: 35,75 m²

  • Unterirdischer Technikraum für Pool

  • Zusätzlicher Technik-/Abstellraum

  • Trinkwasserzisterne: 21,24 m³

  • Regenwasserzisterne: 21,24 m³


 Projektdaten im Überblick

  • Gesamt bebaute Fläche Erdgeschoss: 273,85 m²

  • Gesamt bebaute Fläche (Oberfläche): 389,98 m²

  • Bauvolumen Wohnhaus + Porche: 854,93 m³

  • Bauvolumen Nebengebäude: 124,34 m³


 Eine außergewöhnliche Gelegenheit, sich ein vollständig genehmigtes Bauprojekt in einer der begehrtesten ländlichen Lagen Mallorcas zu   sichern – wahlweise zur eigenen Realisierung oder als schlüsselfertige Luxusimmobilie.

hola
Sie möchten mehr Informationen
Über diese Eigenschaft
Ähnliche Immobilien
Mallorca